462 Northcliffe Boulevard, Toronto C03, ON M6E 3L2 (Dufferin and Rogers)

Price : $2,667,078.00 , MLS®# : C12632764

PUVANESWARANATHAN
Description

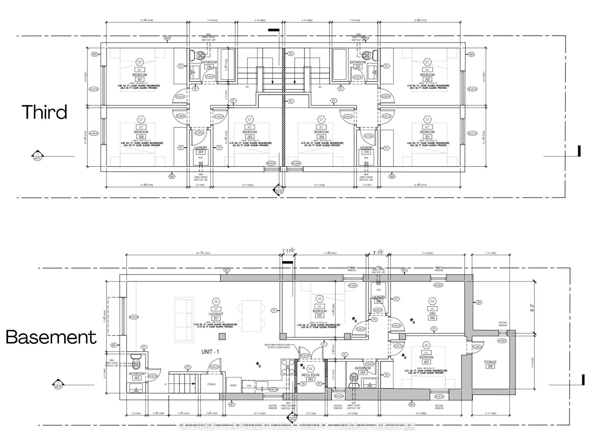
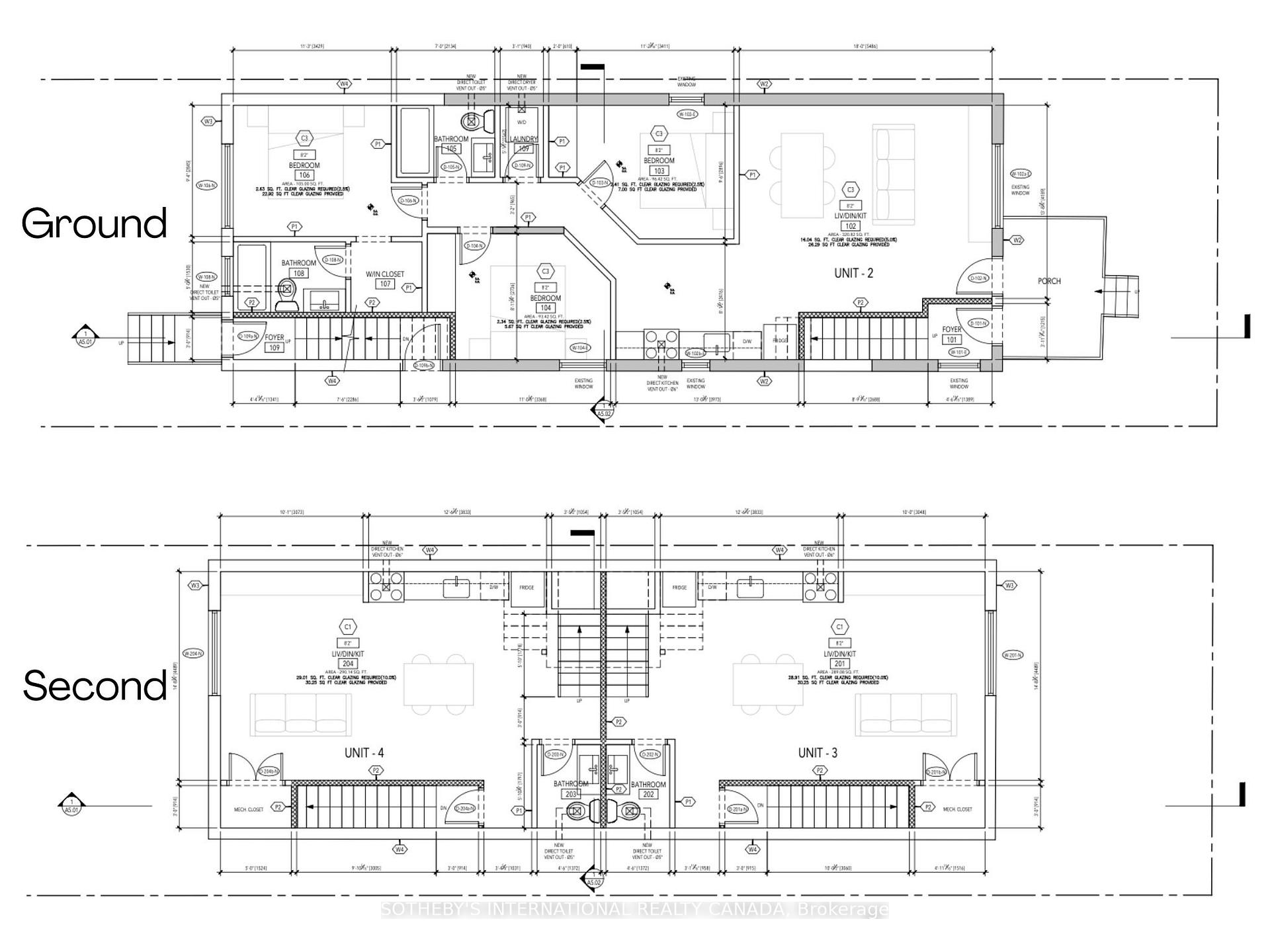
Pre-construction purpose-built rental redevelopment opportunity at 462 Northcliffe Blvd. The property is proposed as a three-storey multi-unit residential building with a self-contained rear garden suite, offered as a fixed-price construction project pursuant to the builder's construction agreement. Architectural drawings and renderings are available for review. The proposed design contemplates a comprehensive rebuild and vertical expansion, including new residential accommodation across multiple storeys and a separate garden suite located at the rear of the lot. The layouts emphasize efficient unit design, individual kitchens and bathrooms, and modern building standards, as illustrated in the architectural plans. The project has been designed with energy efficiency and CMHC MLI Select underwriting considerations in mind, which may provide a potential pathway to insured take-out financing upon stabilization, subject to CMHC program criteria, scoring, debt service coverage, and lender approval. No representation or warranty is made regarding CMHC eligibility, financing terms, or loan-to-value outcomes. Located in an established Toronto neighbourhood with proximity to transit, schools, parks, and local amenities. Intended for build-to-hold investors seeking long-term rental income and cost certainty through a pre-construction structure. Architectural drawings and additional information available upon request. Buyer to verify all permits, approvals, zoning compliance, construction scope, and financing eligibility. Appointment required before walking the site.

Location Description

Dufferin and Rogers

Property Details
  • Community: Oakwood Village
  • Property Type: Vacant/Commercial
  • Garages: None
  • Annual Property Taxes : $ 0
Building Features
  • Parking Type : None
Features
  • Heating : Gas Forced Air Open

Listing Contracted With: SOTHEBY'S INTERNATIONAL REALTY CANADA