716 Penryn Road, Cramahe, ON K0K 1S0 (Dale Rd.)

Price : $889,900.00 , MLS®# : X13054444

PUVANESWARANATHAN
Description

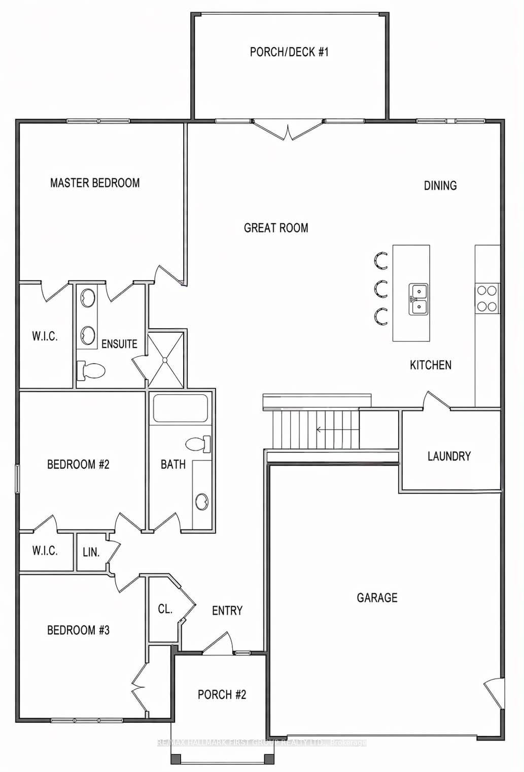
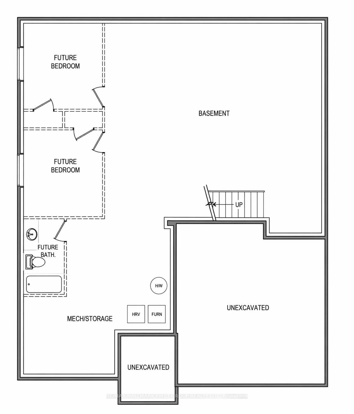
Another stunner! This to-be-built bungalow by one of Northumberland's most reputable builders, Hunt Custom Homes, is set on a spacious 1.98 acre rural lot just minutes from Highway 401 and central to both Brighton and Cobourg. Fully covered by a Tarion warranty and scheduled for completion in October, you can opt to finish the lower level with the builder or customize the main floor while time permits. Appreciate the quality and care through the well-appointed 1517 sqft above grade, designed to offer 3 bedrooms, 2 full bathrooms, an open concept living room with electric fireplace, functional formal dining area and custom kitchen with quartz countertops & centre island, as well as main floor laundry, inside access to the 2-car garage w/ insulated door & jack shaft opener, and a spacious primary suite with a walk-in closet and 4pc. ensuite with glass & tile free standing shower. An unfinished basement (8ft walls) features a bathroom rough-in and space for 2 bedrooms, a rec room and whatever else your future expansion needs are. Quality construction throughout with pot lighting, 3 1/2 inch window casing, 5 3/4 inch baseboard, 2x6 exterior walls, engineered hardwood flooring throughout principle living spaces, tile in bathrooms, quartz countertops, custom cabinetry, wood stairs leading to the lower level with upgraded railings, Moen plumbing fixtures and vaulted ceilings in the great room. Appreciate Energy-efficient mechanicals including 200amp service, heat pump, propane furnace, and HRV system. Exterior highlights include Northstar windows (black interior & exterior), white pine timber frame accent posts at the front entry and rear, stamped concrete walkway meets the front entry from the driveway, Trex composite rear deck boards, recycled asphalt driveway and more. Complete with drilled well, this home blends craftsmanship, comfort, and rural charm.

Location Description

Dale Rd.

Property Details
  • Community: Rural Cramahe
  • Property Type: Vacant/Residential Freehold
  • Bedrooms: 3
  • Bath: 2
  • Garages: Attached
  • Annual Property Taxes : $ 0
Building Features
  • Foundation Type: Poured Concrete
  • Counstruction Material : Stone-Vinyl Siding
  • Total Parking Space : 6
  • Parking Type : Attached
Features
  • Heating : Forced AirPropane
  • Sewer : Septic ,

Listing Contracted With: RE/MAX HALLMARK FIRST GROUP REALTY LTD.